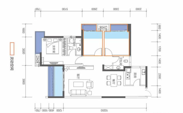
黄埔国际黄埔公馆D1户型
黄埔国际黄埔公馆D1户型
住宅
小三房
飘窗
参考总价
待定
算房贷
我要贷款
( 参考总价=参考均价*建筑面积 )
户型
三室 二厅 二卫
建筑面积
98㎡
购房优惠
报名看房
预约看房
已有
100
人报名
分享
QQ空间
新浪
微博
Twitter
facebook
网易微博
取消
团购预约
预约成功将短信告知
取消
确定
看房预约
报名成功将短信告知
取消
确定